Valeriia Abner
Projets
Activités culturelles et sportives
Commercial
Equipements publics
Industriel
Logements & Bureaux
Mobilité
Établissements sanitaires
Art
Curriculum
Perspective 3D
A propos
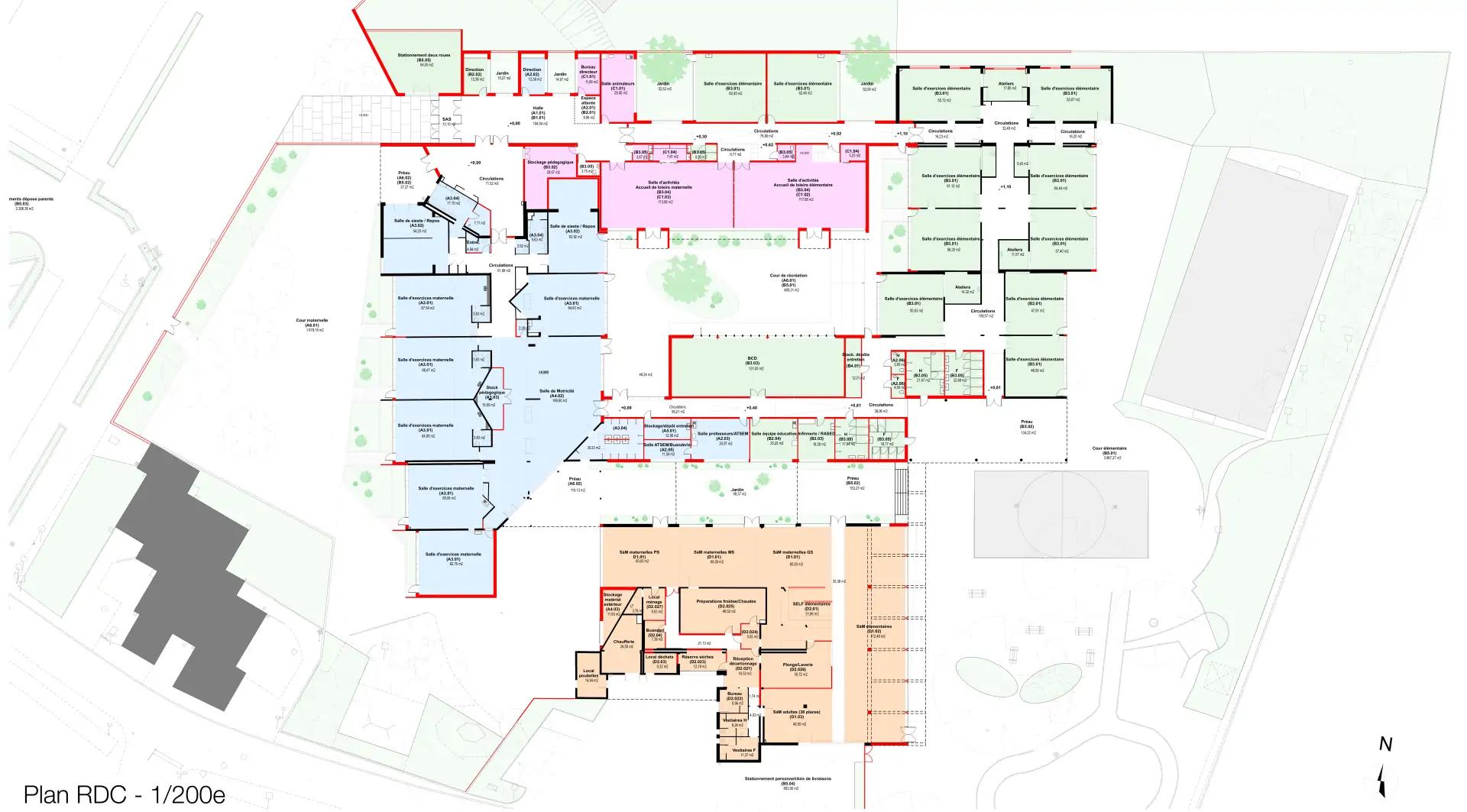
Réhabilitation énergétique et fonctionnelle du groupe scolaire Louis Buton
Phase
Concours
Date
2019
Catégorie
Equipements publics
Emplacement
Aizenay (85)
Autres projets de la catégorie Equipements publics
École en plein air
Caulnes (22)
Complexe Sportif - Salle omnisports et gymnastique
Chavagnes-en-Paillers (85)
Aménagement de la gare de Dinan
Dinan (22)
Aménagement de lu Pôle gare de Surgères
Surgères (17)