Valeriia Abner

Projets

Activités culturelles et sportives

Commercial

Equipements publics

Industriel

Logements & Bureaux

Mobilité

Établissements sanitaires

Art

Curriculum

Perspective 3D

A propos

primary

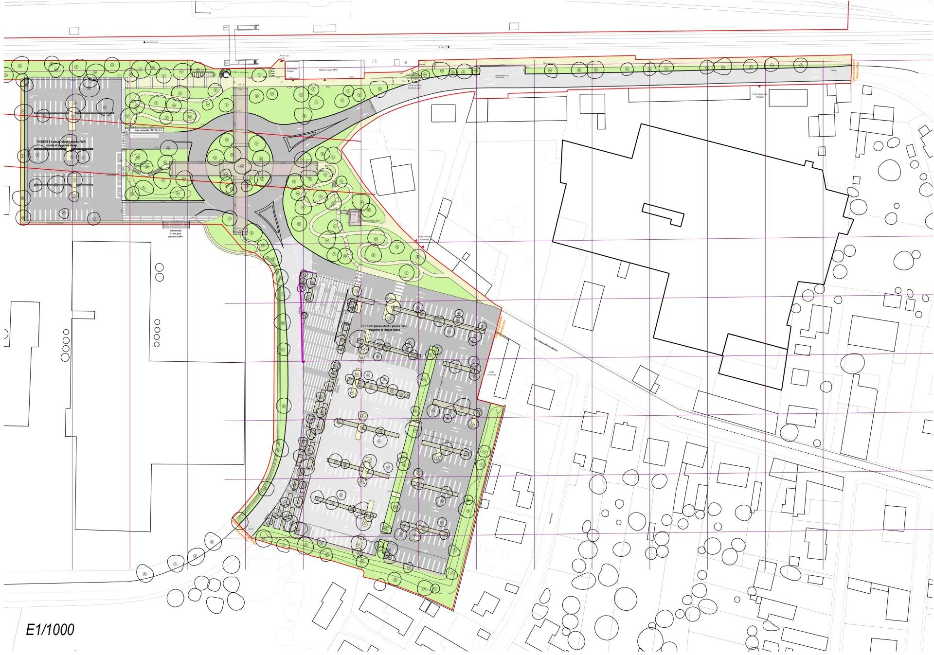
Aménagement de lu Pôle gare de Surgères

Phase
-
Date
2019
Catégorie
Equipements publics
Emplacement
Surgères (17)
project
project
project
project
project
project
project
project
project
project
project
project
project
project
project
project
secondary

Autres projets de la catégorie Equipements publics

projectÉcole en plein air Caulnes (22)projectComplexe Sportif - Salle omnisports et gymnastique Chavagnes-en-Paillers (85)projectRéhabilitation énergétique et fonctionnelle du groupe scolaire Louis Buton Aizenay (85)projectAménagement de la gare de Dinan Dinan (22)