Valeriia Abner
Projets
Activités culturelles et sportives
Commercial
Equipements publics
Industriel
Logements & Bureaux
Mobilité
Établissements sanitaires
Art
Curriculum
Perspective 3D
A propos
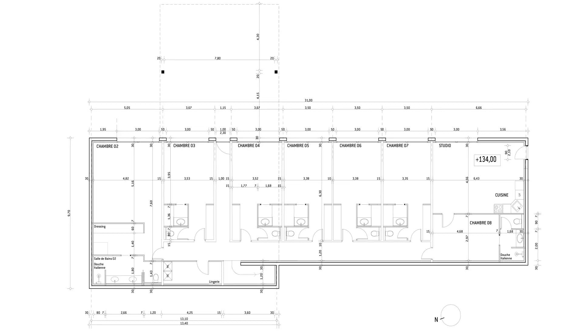
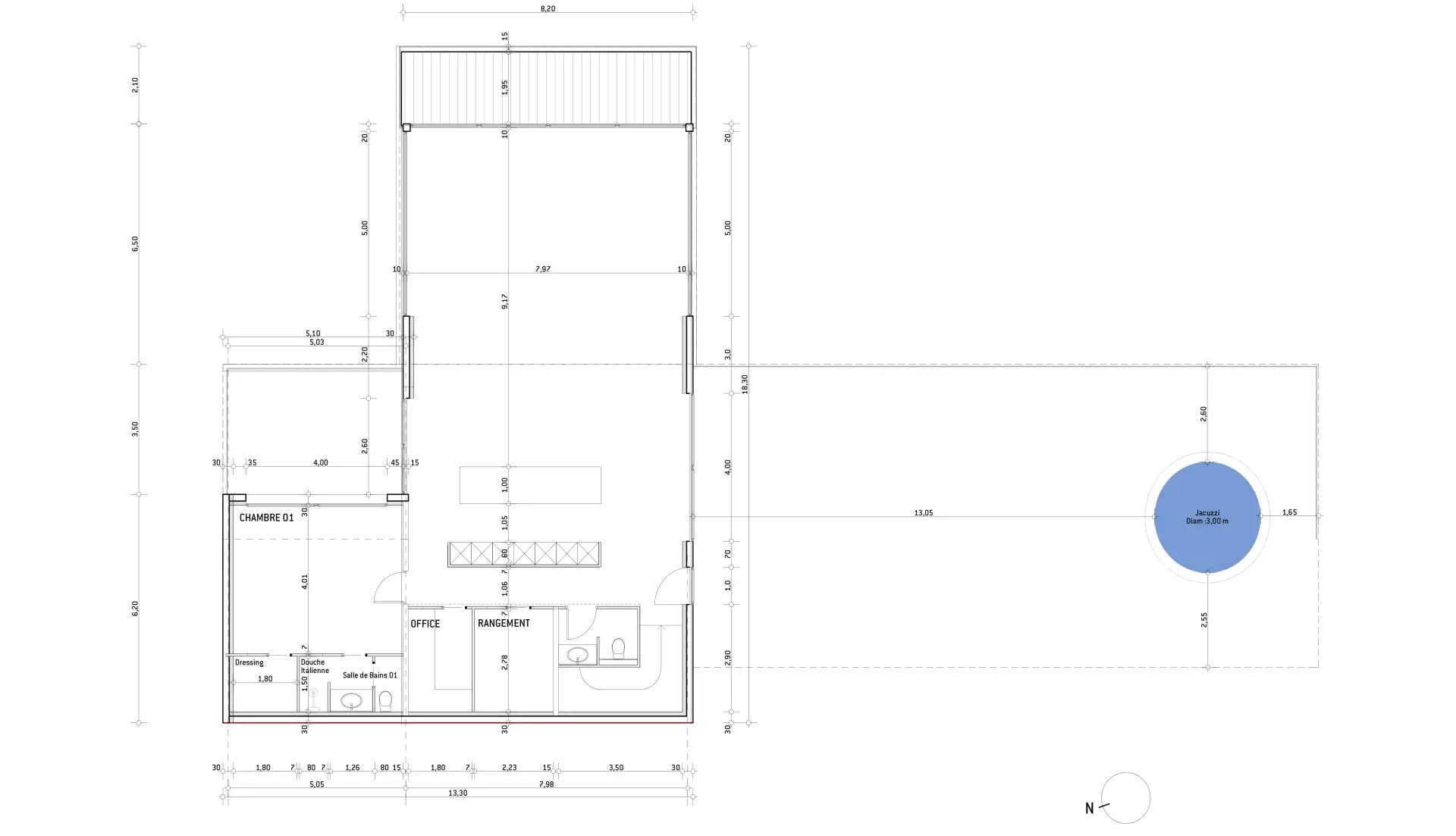
Maison individuelle
Phase
-
Date
2017
Catégorie
Logements & Bureaux
Emplacement
Cannes
Autres projets de la catégorie Logements & Bureaux
Jeux de géométrie changeante
Paris
7 logements d'habitations
Longeville-sur-Mer (85)
17 logements d'habitations (T2 et T3)
La Chapelle Achard (85)