
Cabinet d'orthodonthie
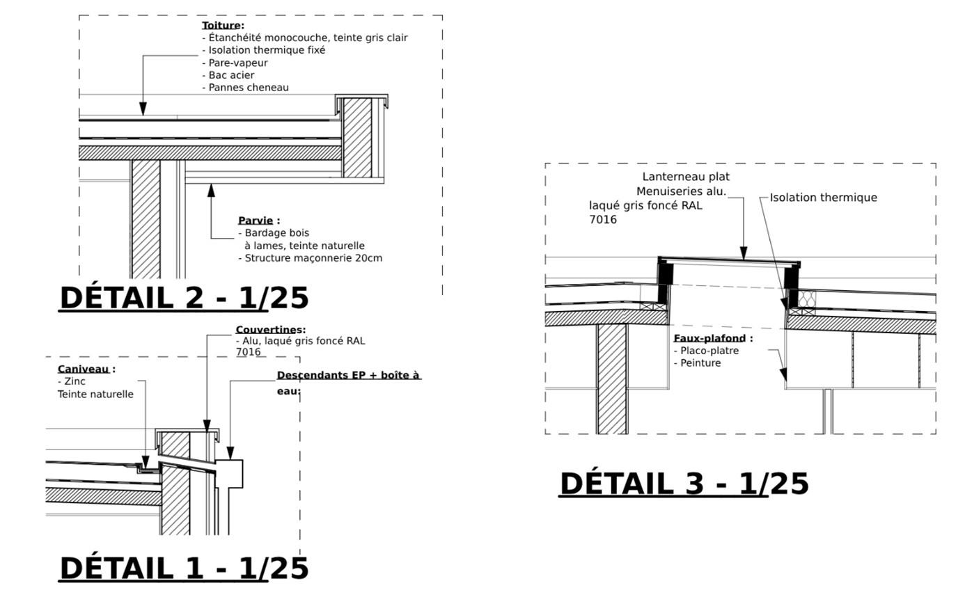
Le cabinet d'orthodontie a été conçu conformément aux normes des cabinets médicaux, PMR et au règlement du PLU, ainsi qu'au demande du maître d'ouvrage. Afin de s'insérer dans le tissu urbain environnant, le projet propose des volumes simples, de plain-pied. Le bâtiment Implanté en arrière de parcelle, libère la partie avant pour l'accueil des stationnements. L'implantation respecte la bande de recul de 3 m en périphérie. La construction sera divisée en 2 volumes. Un volume principal qui identifie la zone de travail et un second, plus petit, qui marque l'entrée du bâtiment. Ces 2 volumes sont envisagés avec des toitures terrasses, non visibles depuis la rue. Ainsi, le projet s'harmonise avec les constructions récentes environnantes, par son aspect contemporain.













